DOM KOCKA – STUDIO23
Dom „Kocka“
Slovakia, 2022, competition entry, 3rd place
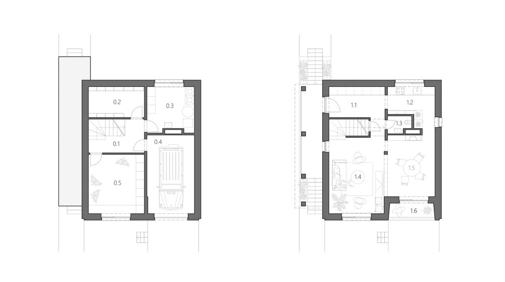
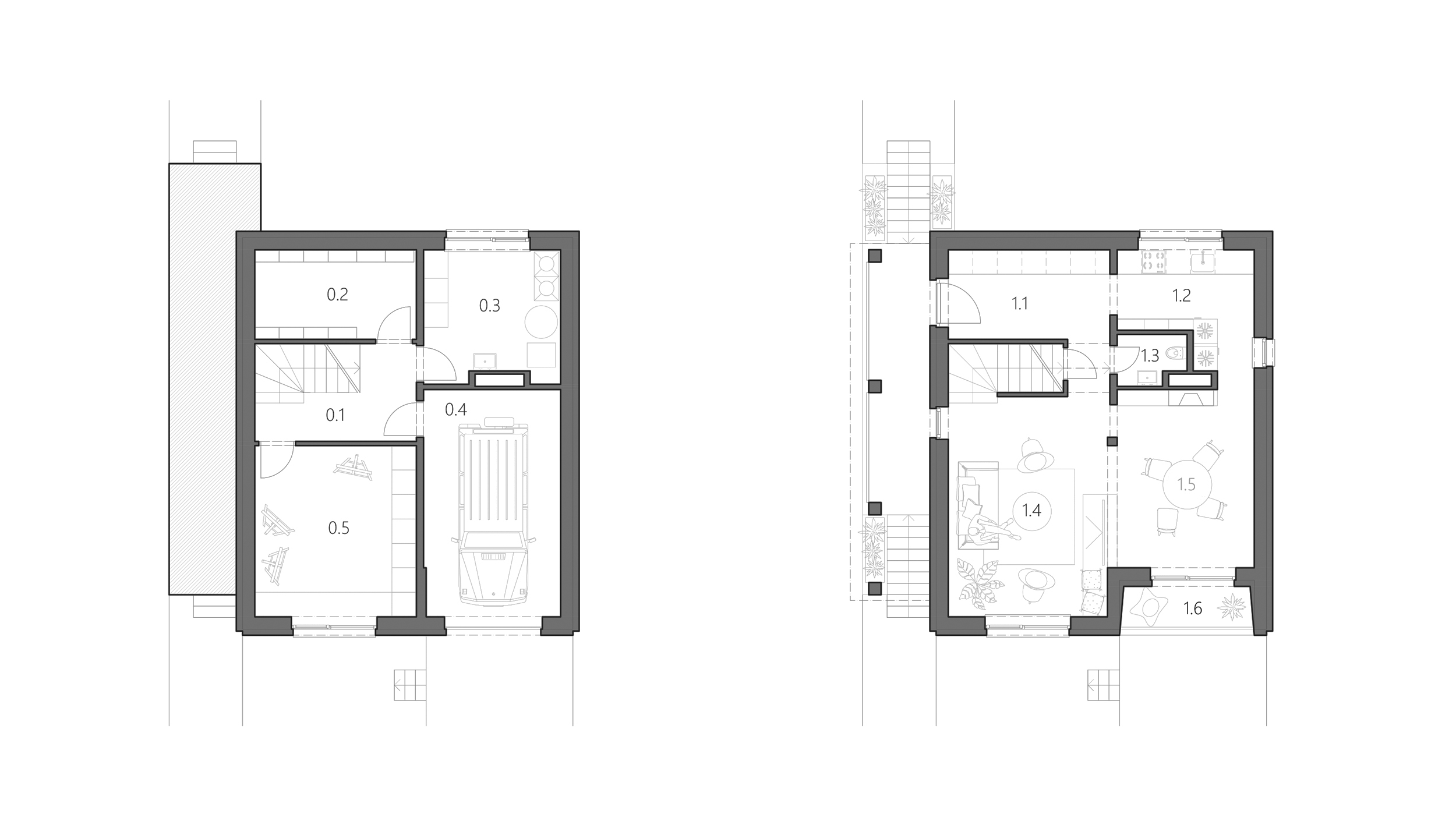
Nebúrať! Očistiť, premyslieť, adaptovať!. Tak by sa dal v skratke zhrnúť náš koncept, ako preniesť klasickú kocku zo 70. rokov do nového tisícročia. Nová tepelná obálka, so zachovaním pôvodnej nadčasovej tektoniky. Zelená strecha, ako štandard na zadržiavanie dažďovej vody. Priestranná veranda, s potenciálom rozšírenia na plnohodnotnú terasu v budúcnosti. Dispozícia odzrkadľujúca potreby súčasnej doby, prepojenie denných priestorov do jedného celku, so zákutiami pre jednotlivé činnosti. Dôraz na súkromie ale zároveň spoločné trávenie času na poschodí. Moderné technológie (tepelné čerpadlo, rekuperácia, a vysoký prevádzkový komfort dáva domu nový život na ďalších minimálne 50 rokov.






