DOM RIŠŇOVCE – STUDIO23
Dom Rišňovce
Rišňovce, Slovakia, 2018, in-progress
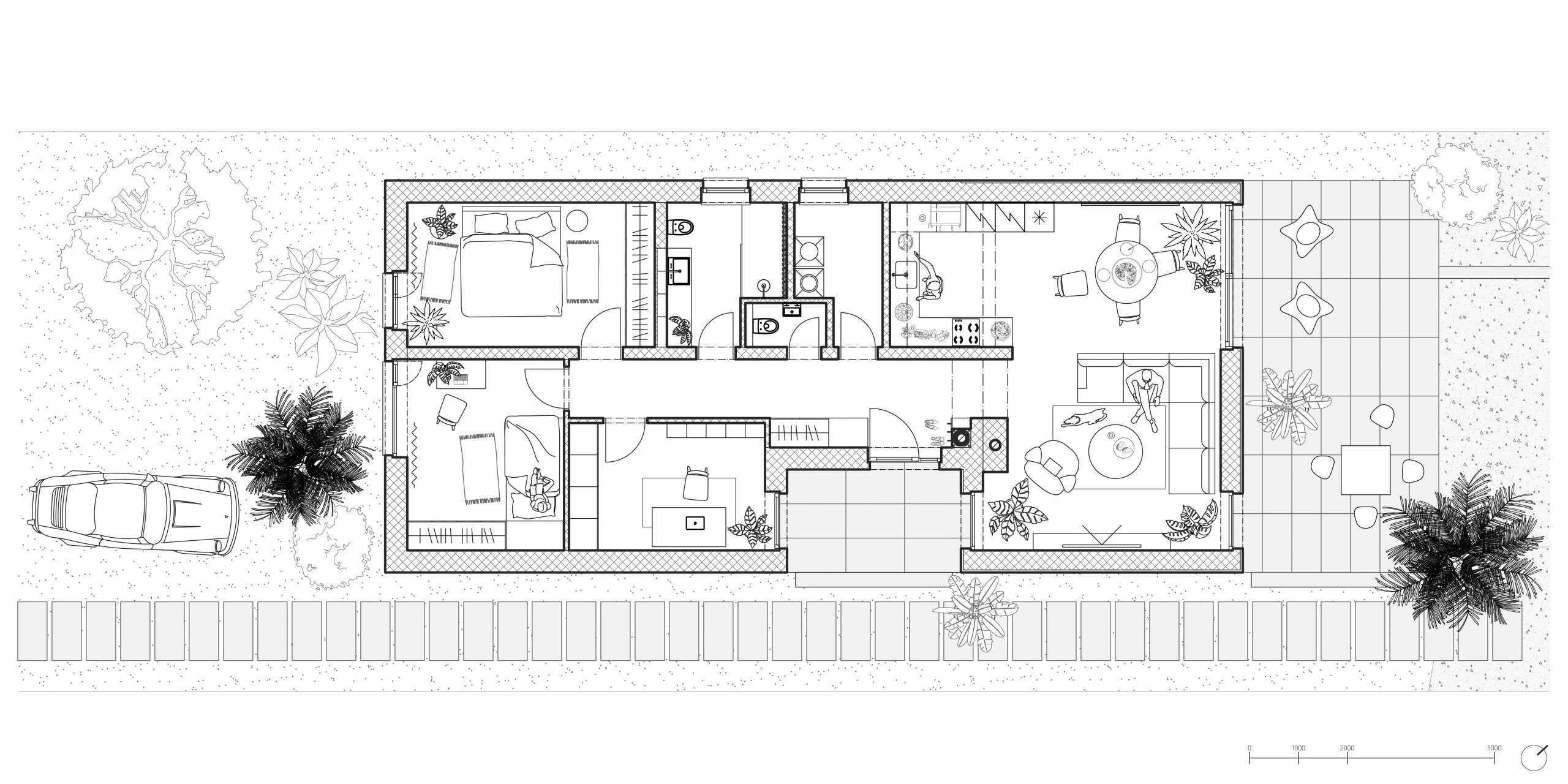
Dlhý, úzky pozemok, na jednej strane rušná cesta, na druhej výhľad do krajiny. Rozdelenie dennej a nočnej časti odzrkadlené v hmote a materialite. Tradičné členenie pozemku: predzáhradka – dom – záhrada. Malá plocha, napriek tomu veľkorysý priestor pre potreby mladej rodiny alebo staršieho páru. Dispozícia s chodbou ako chrbticou, prepájajúcou a prechádzajúcou do jednotlivých zón a miestností. Vstup ako príjemne vyrezané mikropatio.















