DOM S PREJAZDOM – STUDIO23
Dom s prejazdom
Slovakia, 2023, competition entry, reward
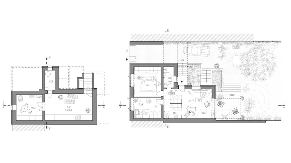
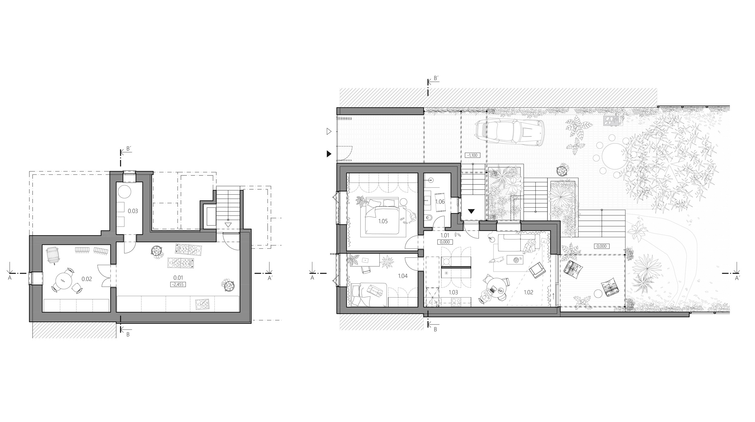
Dom dvoch tvárí. Aj tak by sa dal charakterizovať typ domu s prejazdom, s jednou tvárou do ulice, uhladenou, čistou, ozdobnou, reprezentatívnou, a druhou do dvora, s prístavbami tam kde a ako bolo treba, s dôrazom na funkčnosť. Táto dichotómia, jedinečná pre tento dom, stala sa nám inšpiráciou pre ďalšie rozvíjanie tohto domu.
Uličná časť je čistá puristická, iba s pridaním zateplenia a výmenou výplní otvorov. Pre zachovanie pôvodnej proporcie osadenia okien v stene je použitá predsadená montáž do tepelnej izolácie. Vymenili sme vstupnú bránu za plnú, pre väčší pocit súkromia a jednoduchšie otváranie. Pred nové okná sme pridali skladacie okenice. Omietka je čistá, v zemitých tónoch. Aby mali ale obyvatelia možnosť odlíšiť sa, vytŕčať z priemerného davu béžových domov, všetky nové prvky sú v jednej výraznej farbe, v tomto prípade tmavozelenej.
Dvorová časť je potom úplne iný príbeh. Obrovské otvorenie do záhrady z obývačky, vytvorenie novej terasy na násype zo sutiny z búracích prác a zeminy z výkopu podzemnej nádrže na dažďovú vodu, presunutie vstupu a riešenie výškových rozdielov schodiskami bez zábradlí, iba vyvýšenými kvetináčmi. Nad vstupom aj terasou je súčasná interpretácia tradičného prvku – konštrukcie pre vinič. Naša je z joklových oceľových profilov vyplnených nerezovými lankami, kotvená do steny domu cez izolačné podložky. Spevnené plochy umožňujú svojimi špárami vsakovanie dažďovej vody, aj prerastanie machu a rastlín.
Interiér sa celý točí okolo dreveného boxu. Doslova. Vstup so šatníkom, obývačka s jedálňou, kuchyňa aj nočná časť. Pre prevetranie a osvetlenie vnútra dispozície sme pridali strešné okno nad kuchyňu, s elektrickým otváraním pre efektívne vetranie priestoru. Izby zostali v rovnakej polohe, vymenili si len veľkosti. Kúpeľňa využíva blízkosť technickej miestnosti v suteréne, aj nižší podhľad v prístavbe s plochou strechou. Vo zvyšku domu sú odhalené drevené trámové stropy.





